



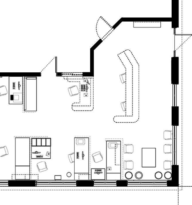
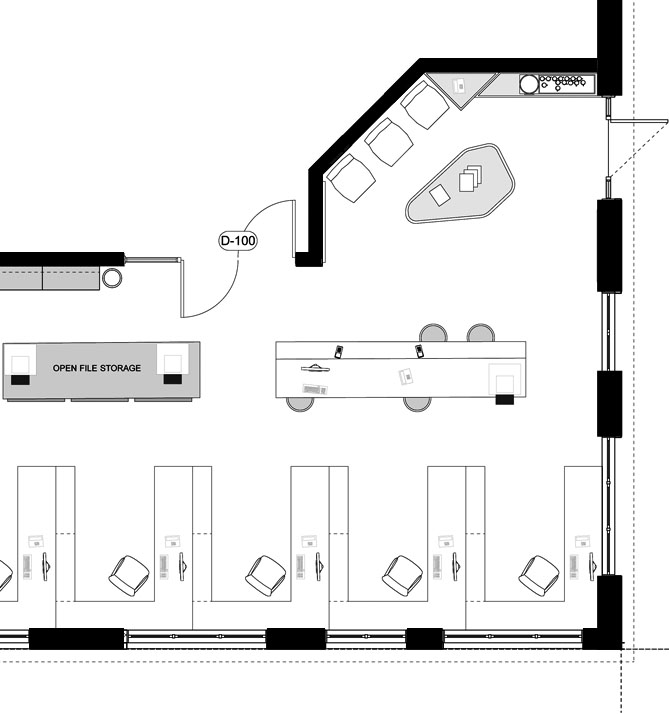
When a local auto body and collision repair shop contacted with hopes of updating their office and customer service area, we took a close look at their current space and how it worked. People usually bring their vehicles in early. Often on their way to work. Making between 7 and 8 AM the most hectic time of day. We were there first thing in the morning and observed the flow in and out, customer and staff behavior and movement of files through the office and into the shop. Using the data we collected that morning we could suggest ways the space could be used more efficiently. These include centralizing copy/fax/print units with file storage. This move also creates a buffer between the office and the bustling shop floor. A modified front counter allows more room for each employee and clearly defines boundaries for customers.